Cambiar navegación
Servicios
Piping
Instrumentación
Civiles
Ventilación
Eléctrica
Mecánica
Portfolio
Novedades
Staff
Contacto
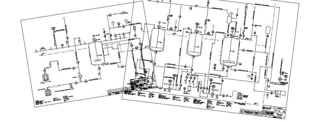
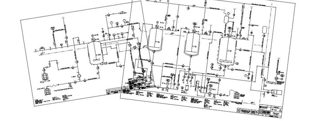
Confección de P&ID Planta de Poliuretanos
Inicio
Portfolio
Relevamiento y confección de planos
Confección de P&ID Planta de Poliuretanos
Siguiente
Confección de P&ID Planta de Poliuretanos
Relevamiento de Planta de poliuretanos. Confección de diagramas de flujo y proceso "P&ID".
Detalles
Fecha
Mayo 2015
Nuestros clientes